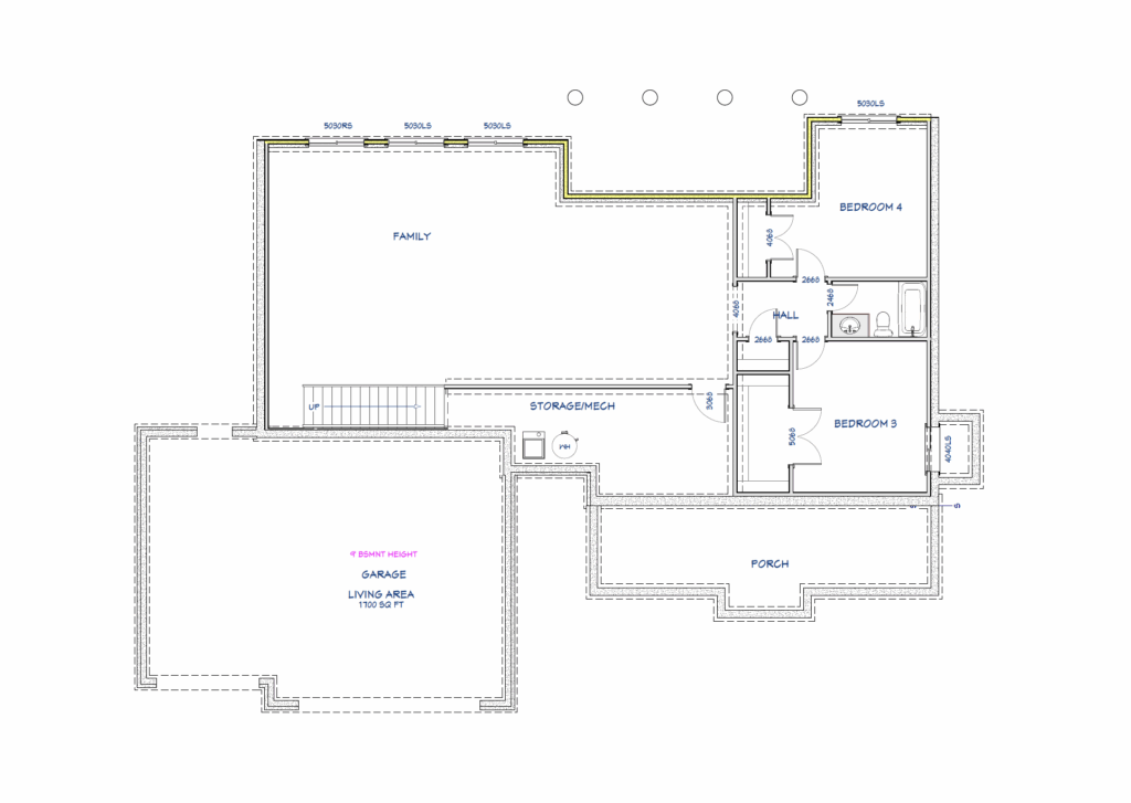
Available Homes

Derby, Kansas

337 Fielding